04garage

行田市図面提案

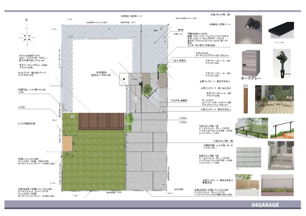
外構工事一式

門柱、門袖 宅配ボックス

デザイナーズレール

照明

土間コンクリート

スロープ手摺

人工芝

ウッドデッキ設置

多段フェンス

門扉設置

境界ブロックフェンス

 

上部へスクロール